防排烟系统常用阀门
文章来源:鑫佳通 作者:轴流风机小编 发布时间:2017-07-06 16:02:24 浏览次数:10652
防烟系统 采用机械加压送风方式或自然通风方式,防止烟气进入疏散通道等区域的系统。机械加压送风 对楼梯间、前室及其它需要被保护区域采用机械送风,使该区域形成正压,防止烟气进入。
排烟系统 采用机械排烟方式或自然排烟方式,将烟气排至建筑物外的系统。机械排烟采用排烟风机将烟气排至建筑物外的方式。自然排烟 利用火灾时产生的热烟气流的浮力和外部风力作用,通过建筑物的对外开口把烟气排至室外的排烟方式。
下面介绍下常用的几类防火阀和风口,先看下国标图集对各类风口的定义:
防火阀
该阀门安装在有防烟、防火要求的通风、空调系统的管道上,平时处于常开状态,火灾时关闭起到防烟阻火的作用。
1、温控:温感器动作阀门自动关闭,可70℃,150℃(厨房用)熔断;
2、电控:消防中心电信号(DC24V)电磁铁动作阀门自动关闭;
3、手动关闭、手动复位;
4、关闭后输出一组有源触点信号和一组无源触点信号

一般安装在排烟系统的管道上,平时处于常开状态,火灾时,当排烟气流温度达到280℃吋,温感器动作将阀门关闭,起到排烟阻火的作用。
1、温控:温感器动作阀门自动关闭;
2、电控:消防中心电信号(DC24V)电磁铁动作阀门自动关闭;
3、手动关闭、手动复位;
4、关闭后输出一组有源触点信号和一组无源触点信号。

正压送风阀口
正压送风口又称为加压送风口、多叶送风口。在其阀体正面装有一铝合金风口,一般安装在楼梯间前室、合用前室等处的侧墙上,有一个操作小室,可设置于阀体的左右或上下位置,该小室装有一活动小门,便于进行操作。
主要功能、特点:
-
平时常闭,电动、手动开启;
-
输出开启动作信号,一组无源触点信号;
-
手动复位关闭;
-
70℃温感器动作,阀门自动重新关闭;可选项;
-
自动开启:消防中心电信号(DC24V/0.5A)电磁铁动作阀门自动开启;


-
平时呈开启状态,防火风口安装在通风空调系统送风、排烟出入口处
-
由铝合金风口与防火阀组合,风口可调节气流方向
-
阀门叶片开启角度可调,70 ℃ 阀门自动关闭, 手动关闭和开启,可输出关闭动作电信号。

该阀门安装在排烟系统管道上,平时处于常闭状态,火灾时打开进行排烟。
1、电控:消防中心电信号(DC24V)电磁铁动作阀门自动开启;
2、手动开启、手动复位;
3、开启后输出一组有源触点信号和一组无源触点信号。

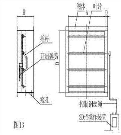
远控排烟阀的主要功能与排烟阀相同,只是远控排烟阀的阀体与操作装置分离,操作装置安装在阀体附近的距地面高1200mm左右的墻壁上,操作器通过钢丝绳与阀体相联进行远距离控制,钢丝绳的长度一般为6m。
1、电控:消防中心电信号(DC24V)电磁铁动作阀门自动开启;
2、手动开启、手动复位;
3、开启后输出一组有源触点信号和一组无源触点信号。